Zum Hauptinhalt springen Zur Suche springen Zur Hauptnavigation springen
Merkliste
Anzahl der Felder 3
Anzahl der TSG-Plätze 0
Anzahl der Verteilerreihen 7
Anzahl der Zählerplätze 2
Ausführung eHZ
Bemessungsstrom 63 A
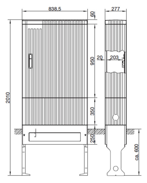
Breite 839 mm
Einbaubreite 839 mm
Einbauhöhe 2010 mm
Einbautiefe 277 mm
Farbe grau
Höhe 2010 mm
Mit Montageplatte ja
Montageart Aufputz/teilversenkt
RAL-Nummer 7035
Schutzart (IP) IP44
Tiefe 277 mm
Unterer Anschlussraum mit Sammelschiene 5-polig
Werkstoff Kunststoff
Zähleranschlusssäule ja
Hager Zähleranschlusssäule 2Z eHZ 3Feld IP44 SS_5p 2010x839x277mm
Produktinformationen des Herstellers
Zähleranschlusssäule 207, universZ, 2 ZP, eHZ, 5-polig, Leerfeld, Basis, APZ.Zähleranschlusssäule, Schutzart IP 44, als Basissäule inklusiv Eingrabsockel, aus glasfaserverstärktes Polyester FS 833.5 nach DIN EN 14598. Die Zähleranschlusssäule erfüllt die Anforderungen der DIN VDE 0603-1 (VDE 0603-1):2017-06 in Verbindung mit der DIN VDE 0603-2-1 (VDE 0603-2-1):2017-06. Weiterhin ist die Anlage basierend auf den geltenden Anwendungsrichtlinien der VDE-AR-N 4100:2019-04 inkl. der zugehörigen Berichtigung VDE-AR-N 4100 Ber 1:2019 aufgebaut. Durch Zusatzbauteile wird die Basissäule zu einer anschlussfertigen Zähleranschlusssäule des entsprechenden VNB ausgebaut. Profiliertes Gehäuse im Rippendesign. Tür mit Öffnungswinkel 180 Grad bei freiem Stand und 90 Grad bei angereihten Gehäusen. Rechte Tür ist aushängbar. Schließung mit Schwenkhebel und Drei-Punkt-Basküleverschluss mit 1 bzw. 2 Profilhalbzylindern. Eingebauter Zylinder unten mit gleichschließender Serie. Ein zweiter Schließzylinder (z.B. aus VNB-Schließanlage) kann oben nach Entfernen des Vierkantverschlusses eingebaut werden. Wenn kein zweiter Profilhalbzylinder eingebaut wird, muss die zweite obere Öffnung mit einem Blindverschluss bestückt werden. Die Belüftung erfolgt über labyrinthartig ausgebildete Lüftungskanäle, verhindert das Eindringen von Fremdkörpern und ist stochersicher. Zähleranschlusssäulen sind gebaut nach technischer Richtlinie: Anschlussschränke im Freien/Anschluss von ortsfesten Schalt- und Steuerschränken und Zähleranschlusssäulen an das Niederspannungsnetz des VNB. Der Einbau besteht aus schutzisolierten Zählerfeldern DIN 43870 (Funktionsflächen) für Zähler. Zählerplätze sind vorgerichtet für eine IP54 Abdeckung. Eingrabsockel und Zähleranschlusssäule bilden eine Einheit. Ein Bodenrost ist empfohlen. Zur Betauungsvermeidung ist der Sockel bis zur Höhe der Kabelbefestigungsschiene innen mit
Mehr Informationen
Melde Dich zuerst an, um diese Funktion verwenden zu können.
Anzahl der Felder 3
Anzahl der TSG-Plätze 0
Anzahl der Verteilerreihen 7
Anzahl der Zählerplätze 2
Ausführung eHZ
Bemessungsstrom 63 A
Breite 839 mm
Einbaubreite 839 mm
Einbauhöhe 2010 mm
Einbautiefe 277 mm
Farbe grau
Höhe 2010 mm
Mit Montageplatte ja
Montageart Aufputz/teilversenkt
RAL-Nummer 7035
Schutzart (IP) IP44
Tiefe 277 mm
Unterer Anschlussraum mit Sammelschiene 5-polig
Werkstoff Kunststoff
Zähleranschlusssäule ja
Hager Zähleranschlusssäule 2Z eHZ 3Feld IP44 SS_5p 2010x839x277mm
Produktinformationen des Herstellers
Zähleranschlusssäule 207, universZ, 2 ZP, eHZ, 5-polig, Leerfeld, Basis, APZ.Zähleranschlusssäule, Schutzart IP 44, als Basissäule inklusiv Eingrabsockel, aus glasfaserverstärktes Polyester FS 833.5 nach DIN EN 14598. Die Zähleranschlusssäule erfüllt die Anforderungen der DIN VDE 0603-1 (VDE 0603-1):2017-06 in Verbindung mit der DIN VDE 0603-2-1 (VDE 0603-2-1):2017-06. Weiterhin ist die Anlage basierend auf den geltenden Anwendungsrichtlinien der VDE-AR-N 4100:2019-04 inkl. der zugehörigen Berichtigung VDE-AR-N 4100 Ber 1:2019 aufgebaut. Durch Zusatzbauteile wird die Basissäule zu einer anschlussfertigen Zähleranschlusssäule des entsprechenden VNB ausgebaut. Profiliertes Gehäuse im Rippendesign. Tür mit Öffnungswinkel 180 Grad bei freiem Stand und 90 Grad bei angereihten Gehäusen. Rechte Tür ist aushängbar. Schließung mit Schwenkhebel und Drei-Punkt-Basküleverschluss mit 1 bzw. 2 Profilhalbzylindern. Eingebauter Zylinder unten mit gleichschließender Serie. Ein zweiter Schließzylinder (z.B. aus VNB-Schließanlage) kann oben nach Entfernen des Vierkantverschlusses eingebaut werden. Wenn kein zweiter Profilhalbzylinder eingebaut wird, muss die zweite obere Öffnung mit einem Blindverschluss bestückt werden. Die Belüftung erfolgt über labyrinthartig ausgebildete Lüftungskanäle, verhindert das Eindringen von Fremdkörpern und ist stochersicher. Zähleranschlusssäulen sind gebaut nach technischer Richtlinie: Anschlussschränke im Freien/Anschluss von ortsfesten Schalt- und Steuerschränken und Zähleranschlusssäulen an das Niederspannungsnetz des VNB. Der Einbau besteht aus schutzisolierten Zählerfeldern DIN 43870 (Funktionsflächen) für Zähler. Zählerplätze sind vorgerichtet für eine IP54 Abdeckung. Eingrabsockel und Zähleranschlusssäule bilden eine Einheit. Ein Bodenrost ist empfohlen. Zur Betauungsvermeidung ist der Sockel bis zur Höhe der Kabelbefestigungsschiene innen mit
Mehr Informationen
Melde Dich zuerst an, um diese Funktion verwenden zu können.
Artikelnummer 2923585
Hersteller Hager
Originalbezeichnung ZAS207BE25A
Werksnummer ZAS207BE25A
EAN 3250611073680
Zolltarifnummer 85371098
Lagerart Beschaffungsware
Melde Dich zuerst an, um weitere Informationen zum Bestand zu erhalten

Zuletzt angesehen

Informationen direkt vom Hersteller

Katalogseiten

Bewertungen (0)

Durchschnittliche Bewertung von 0 von 5 Sternen

Gib eine Bewertung ab!

Teile Deine Erfahrungen mit dem Produkt mit anderen Kunden.